Horizon 55

Parterowy o pow. 54,26 m2

Projekt HORIZON 55 to doskonały dom dla 1-2 osób. Dom HORIZON 55 to również idealny całoroczny dom wakacyjny.

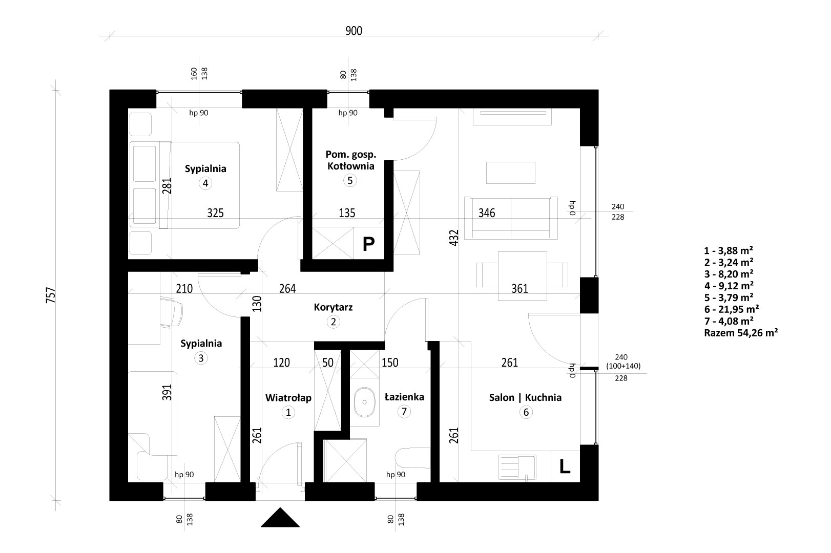
RZUT PARTERU

Zobacz rozmieszczenie i powierzchnię pomieszczeń

Wiatrołap: 3,88 m2

Korytarz: 3,24 m2

Sypialnia: 8,20 m2

Sypialnia 2: 9,12 m2

Pom.gospodarcze: 3,79 m2

Salon z kuchnią: 21,95 m2

Łazienka: 4,08 m2

SUMA: 54,26 m2

HORIZON nowoczesny, kompaktowy dom parterowy o powierzchni 54,26 m², stworzony z myślą o wygodnym i energooszczędnym życiu. Jego prosta bryła i elegancka elewacja z ciemnego drewna idealnie wpisują się zarówno w klimat miejskiego ogrodu, jak i działki poza miastem. Prosta forma, elegancka elewacja z ciemnego drewna i duże przeszklenia nadają mu wyjątkowy, współczesny charakter.

Powierzchnia użytkowa

54,26 m2

Powierzchnia zabudowy

68,13 m2

Wysokość budynku

5,80 m

Wymiary zewnętrzne

9,00 x 7,57 m

Cena

Stan wykończony: 

Nasze technologie

Opracowaliśmy kompleksową ofertę, obejmującą zaawansowane technologicznie produkty dla domu SOLE, takie jak:

  • dach fotowoltaiczny SOLIDACH,
  • panele słoneczne JBG PV,
  • propanowe pompy ciepła JBG HT,
  • innowacyjne wysokoizolacyjne szyby próżniowe.
sole-94-v.2-tyl

Masz pytania?
Chcesz poznać swoje możliwości?

Nasi doradcy czekają, by przybliżyć Cie do realizacji swojego domu.

Nasze domy produkowane są w zakładzie i dostarczone w uzgodnionym stanie na działkę Klienta. Proces ten trwa do dwóch miesięcy a sam montaż odbywa się w ciągu jednego dnia.

Prezentowane na stronie ceny dotyczą domu produkowanego w zakładzie. Dostawa i montaż jest wyceniany indywidualnie w zależności od lokalizacji, w której ma stanąć dom.

Nasze domy opierają się na konstrukcji szkieletowej z dwuteowych belek firmy Steico. Przestrzeń pomiędzy belkami wypełniona jest izolacją termiczną.

W zakładce Kontakt z nami znajduje się formularz kontaktowy. Możesz też po prostu zadzwonić.

💡 Sprawdź FAQ – Zobacz, czy ktoś już nie zadał tego pytania, które masz na myśli! W naszej sekcji Najczęściej Zadawanych Pytań znajdziesz szybkie odpowiedzi na wiele popularnych tematów.

O nas

PEConstruction Sp. z o.o.
Domy modułowe prefabrykowane oraz szkieletowe