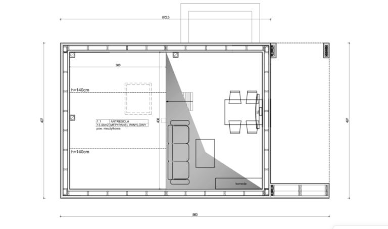
Dom przeznaczony jest dla dwuosobowej rodziny lub rodziny 2+1. W jego skład wchodzą: salon z aneksem kuchennym, łazienka, sypialnia oraz antresola pełniąca funkcji sypialni. Dodatkowym atutem jest przestronny, zadaszony taras, który zapewnia komfort wszystkim użytkownikom.
Ściany zewnętrzne z elewacją drewnianą:
Konstrukcja oparta na drewnie klasy C24, wełnie mineralnej λ 0,033 oraz płytach gipsowo-włóknowych.
Współczynnik przenikalności cieplnej ściany Uw=0,194 W/m²K.
Strop nad gruntem: Konstrukcja kratownica drewniana z wypełnieniem wełną mineralną o λ 0,033.
Współczynnik przenikalności cieplnej stropu Uw=0,148 W/m²K.
Dach: Warstwowy z izolacją wełną mineralną (30 cm), pokryty blachą na rąbek lub blachodachówką.
Współczynnik przenikalności cieplnej dachu Uw=0,137 W/m²K.
Stolarka okienna: 3-szybowe okna PVC na profilu Veka Softline 82 (Ug=0,85) oraz okna dachowe Velux.
Drzwi wejściowe: Stalowe Erkado, klasa antywłamaniowa RC2 (Ud=0,63).
Instalacje: Podstawowe elektryczne, hydrauliczne i wentylacyjne w opcjach dodatkowych.
Cena z samodzielnym montażem 119 000 zł netto.
Cena z montażem to 135 000 zł netto.



