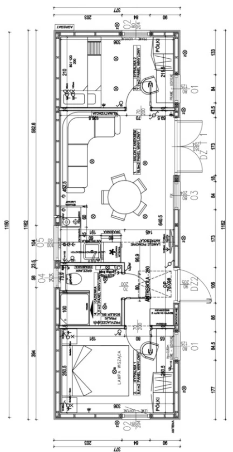
Wymiary: 3,65m x 11,50m
DOMEK IDEALNY
Gotowy na każdą porę roku!
Domek Idealny to jeden z największych dostępnych domów mobilnych klasy premium. Łączy nowoczesny design z funkcjonalnością i pełnym wyposażeniem, dzięki czemu stanowi doskonałe rozwiązanie zarówno jako całoroczny dom, jak i luksusowy domek rekreacyjny. Ogromny taras 60 m² to idealna przestrzeń na spotkania z rodziną i przyjaciółmi, popołudniowe leżakowanie z książką lub letnie śniadania na świeżym powietrzu. Taras naturalnie powiększa przestrzeń życiową i zaprasza do życia w rytmie natury
MATERIAŁY
Opis wykończenia
DOMEK IDEALNY ocieplony jest wysokiej klasy wełną mineralną o bardzo dobrym współczynniku przewodzenia ciepła (λ = 0,033), co gwarantuje komfort cieplny o każdej porze roku: dach – 15 cm, podłoga – 20 cm, ściany – 10 cm (z możliwością zwiększenia do 15 cm).
Wersja Standard zawiera:
Salon: podłoga wykończona panelem winylowym, okna zgodnie z projektem, oświetlenie punktowe (halogenowe),drewniana drabinka prowadząca na antresolę.
Sypialnia: podłoga z paneli winylowych, drzwi wewnętrzne.
Antresola: wykończenie deską obiciową.
Kuchnia: podłoga winylowa, opcjonalna zabudowa kuchni (dodatkowa opcja).
Łazienka: kabina prysznicowa, muszla klozetowa, bateria umywalkowa, drzwi drewniane, podłoga z paneli winylowych.
Instalacje: kompletna instalacja elektryczna z punktami świetlnymi (halogeny), instalacja hydrauliczna.
Dach i elewacja: pokryty estetyczną i odporną na warunki atmosferyczne blachodachówką lub blachą na rąbek. Opcjonalnie możliwe jest dodanie niezadaszonego tarasu.
Na życzenie klienta, istnieje możliwość dobudowania niezadaszonego tarasu, który pozwoli na relaks na świeżym powietrzu. Domek może być wykończony i wyposażony pod klucz.
Cena rozpoczyna się od 220 000 netto.
Cena w wykończeniem klasy Premium – 299 000 netto.
Preferencyjna stawka VAT 8% dotyczy budynków mieszkalnych na działce budowlanej.
Poszczególne stany wykończenia nie zawierają ceny fundamentów, instalacji elektrycznej i wod.-kan. oraz tran
Masz pytania? Chcesz poznać swoje możliwości?
Nasi doradcy czekają, by przybliżyć Cie do realizacji swojego domu.
Nasze domy produkowane są w zakładzie i dostarczone w uzgodnionym stanie na działkę Klienta. Proces ten trwa do dwóch miesięcy a sam montaż odbywa się w ciągu jednego dnia.
Prezentowane na stronie ceny dotyczą domu produkowanego w zakładzie. Dostawa i montaż jest wyceniany indywidualnie w zależności od lokalizacji, w której ma stanąć dom.
Nasze domy opierają się na konstrukcji szkieletowej z dwuteowych belek firmy Steico. Przestrzeń pomiędzy belkami wypełniona jest izolacją termiczną.
W zakładce Kontakt z nami znajduje się formularz kontaktowy. Możesz też po prostu zadzwonić.
💡 Sprawdź FAQ – Zobacz, czy ktoś już nie zadał tego pytania, które masz na myśli! W naszej sekcji Najczęściej Zadawanych Pytań znajdziesz szybkie odpowiedzi na wiele popularnych tematów.
O nas
PEConstruction Sp. z o.o.
Domy modułowe prefabrykowane oraz szkieletowe








