STOR

Domy modułowe w technologii CLT

Przestronny dom Stor to doskonały wybór dla osób ceniących duże przestrzenie.

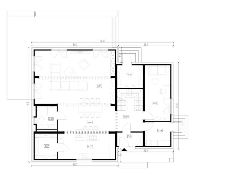
RZUT PARTER

Zobacz rozmieszczenie i powierzchnię pomieszczeń

PARTER

0.01 WIATROŁAP3,59 m2
0.02 KOMUNIKACJA6,59 m2
0.03 KUCHNIA 16,20 m2
0.04 JADALNIA16,37 m2
0.05 SALON 44,17 m2
0.06 ŁAZIENKA4,74 m2
0.07 SPIŻARNIA5,88 m2
0.08 POM. TECHNICZNE6,45 m2
0.09 GABINET14,66 m2
0.10 SCHOWEK5,98 m2
RAZEM 124,63 m2
 

RZUT PIĘTRO

Zobacz rozmieszczenie i powierzchnię pomieszczeń

 

PIĘTRO

1.01 KOMUNIKACJA14,78 m2
1.02 ŁAZIENKA4,25 m2
1.03 SYPIALNIA21,32 m2
1.04 GARDEROBA4,71 m2
1.05 ŁAZIENKA7,90 m2
1.06 POKÓJ13,13 m2
1.07 GARDEROBA4,21 m2
1.08 POKÓJ14,43 m2
1.09 GARDEROBA3,56 m2
1.10 POKÓJ11,80 m2
1.11 GARDEROBA4,16 m2
RAZEM104,25 m2
 

Masz pytania?
Chcesz poznać swoje możliwości?

Nasi doradcy czekają, by przybliżyć Cie do realizacji swojego domu.

Nasze technologie

Opracowaliśmy kompleksową ofertę, obejmującą zaawansowane technologicznie produkty dla domu SOLE, takie jak:

  • dach fotowoltaiczny SOLIDACH,
  • panele słoneczne JBG PV,
  • propanowe pompy ciepła JBG HT,
  • innowacyjne wysokoizolacyjne szyby próżniowe.
sole-94-v.2-tyl

Nasze domy produkowane są w zakładzie i dostarczone w uzgodnionym stanie na działkę Klienta. Proces ten trwa do dwóch miesięcy a sam montaż odbywa się w ciągu jednego dnia.

Prezentowane na stronie ceny dotyczą domu produkowanego w zakładzie. Dostawa i montaż jest wyceniany indywidualnie w zależności od lokalizacji, w której ma stanąć dom.

Nasze domy opierają się na konstrukcji szkieletowej z dwuteowych belek firmy Steico. Przestrzeń pomiędzy belkami wypełniona jest izolacją termiczną.

W zakładce Kontakt z nami znajduje się formularz kontaktowy. Możesz też po prostu zadzwonić.

💡 Sprawdź FAQ – Zobacz, czy ktoś już nie zadał tego pytania, które masz na myśli! W naszej sekcji Najczęściej Zadawanych Pytań znajdziesz szybkie odpowiedzi na wiele popularnych tematów.

O nas

PEConstruction Sp. z o.o.
Domy modułowe prefabrykowane oraz szkieletowe