FILMA

Nowoczesny Dom Drewniany

Filma – Dom skrojony na miarę Twoich oczekiwań
Nowoczesny dom drewniany o powierzchni 65 m²

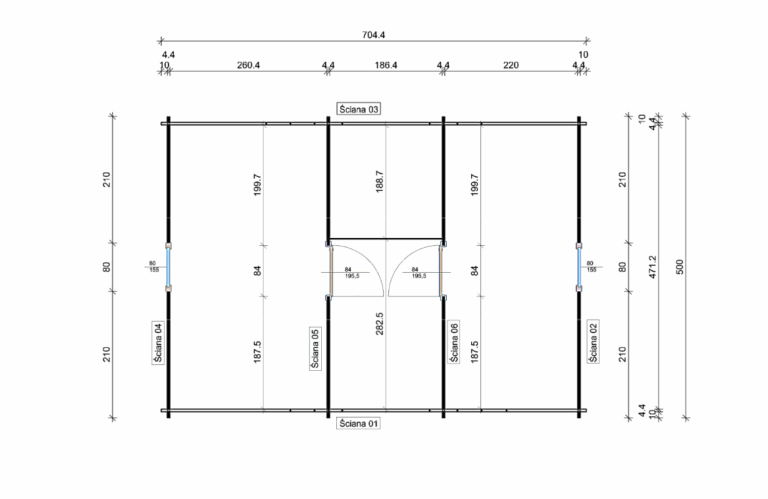
RZUTY

Zobacz rozmieszczenie i powierzchnię pomieszczeń

POWIERZCHNIA PODŁOGI: 65 m² 

Wymiary domku: 7 x 5 m 

Powierzchnia dachu – 46,42 m2  

Grubość balika – 70 mm  

Wymiary ściany – 357,3 cm  

Wysokość szczytu – 499,2 cm  

Nachylenie dachu- 30 ° 

Wymiary drzwi – 3x84x195,5/ drzwi frontowe 2x160x196 cm 

Wymiary okien – 2x80x155/ 2x100x80/ 80×40 cm 

FILMA to nowoczesny, ekologiczny dom drewniany, który wyróżnia się ponadczasową formą nawiązującą do nowoczesnej Stodoły. Powierzchnia zabudowy do 35 m2 umożliwia budowę na zgłoszenie! Dzięki użytkowej antresoli powierzchnia całkowita wynosi aż 65 m2. Filma sprawdzi się zarówno dla rodzin, jak i inwestorów pod np. ośrodek wypoczynkowy, czy deweloperkę.

Dom wykonany jest z wysokiej jakości czterostronnie struganych balików o grubości 70 mm. Przy montażu korzystamy z precyzyjnej technologii na podwójne “pióro i wpust”, co gwarantuje trwałość na lata. Filma posiada dwuspadowy dach o powierzchni 46,4 m2 i kącie nachylenia 30 °. W standardzie podłoga jest o grubości 28 mm. Dom jest wyposażony w potrójnie szklone okna PVC oraz w pełni ocieplony wełną 15 cm, co zapewnia optymalną izolację cieplną i akustyczną. 

Dzięki wysokości ścian sięgającej 357,3, a w punkcie szczytowym 499,2 cm wnętrze domku jest niezwykle przestronne i funkcjonalne. Duże przeszklenia na froncie zapewniają dostęp naturalnego światła, dzięki czemu parter jest jasny i przytulny. Znajduje się tutaj duży, otwarty salon z aneksem kuchennym (prawie 30 m2) oraz łazienka (ok. 4 m2). Wygodne schody (do wyboru kręcone bądź zabiegowe) prowadzą na piętro składające się z dwóch przestronnych i słonecznych sypialni z pojedynczymi oknami (ok. 10 m2 i 12 m2), a także na antresole, którą można dowolnie zaaranżować.

Cena: 245 000 zł brutto

CENA ZAWIERA:

konstrukcję z balika 70 mm 

system przeszklenia PVC trzyszybowe 

podłogę 28 mm 

deskę drewnianą 18 mm 

drzwi wewnętrzne i zewnętrzne 

montaż blachodachówki Pruszyński + rynny ocynk

impregnacja zewnętrzna i wewnętrzna  

ocieplenie dachu, ścian, podłogi wełną 15 cm

montaż i transport na terenie całej Polski

Cena 275 000 zł brutto wraz z: 

instalacjami elektrycznymi i hydraulicznymi 

płytę fundamentową na terenie całej Polski   

 

Masz pytania?
Chcesz poznać swoje możliwości?

Nasi doradcy czekają, by przybliżyć Cie do realizacji swojego domu.

Nasze domy produkowane są w zakładzie i dostarczone w uzgodnionym stanie na działkę Klienta. Proces ten trwa do dwóch miesięcy a sam montaż odbywa się w ciągu jednego dnia.

Prezentowane na stronie ceny dotyczą domu produkowanego w zakładzie. Dostawa i montaż jest wyceniany indywidualnie w zależności od lokalizacji, w której ma stanąć dom.

Nasze domy opierają się na konstrukcji szkieletowej z dwuteowych belek firmy Steico. Przestrzeń pomiędzy belkami wypełniona jest izolacją termiczną.

W zakładce Kontakt z nami znajduje się formularz kontaktowy. Możesz też po prostu zadzwonić.

💡 Sprawdź FAQ – Zobacz, czy ktoś już nie zadał tego pytania, które masz na myśli! W naszej sekcji Najczęściej Zadawanych Pytań znajdziesz szybkie odpowiedzi na wiele popularnych tematów.

O nas

PEConstruction Sp. z o.o.
Domy modułowe prefabrykowane oraz szkieletowe