KORA

DOM MODUŁOWY 52 M2

KORA – Kompaktowy, całoroczny dom o powierzchni 65 m², który zachwyca nowoczesną architekturą i dużymi przeszkleniami. Przemyślany układ z dwoma sypialniami, dwoma łazienkami i antresolą zapewnia komfort nawet dla 8 osób.

RZUTY

Zobacz rozmieszczenie i powierzchnię pomieszczeń

Powierzchnia zabudowy: 52m2

Powierzchnia całkowita : 65 m2 

Wysokość budynku: 6,81 m2

Parter:  salon z kuchnią: 26,48 m2, Sypialnia:6,76 m2, Łazienka: 4,43 m

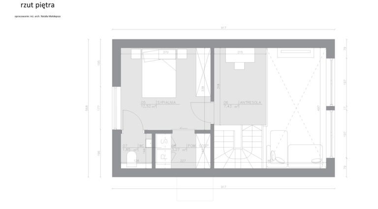
Piętro: Sypialnia 12,52, Antresola: 7,43m2, Pom. Gospodarcze: 3,27 m2, WC 1,85 m2

 

Wymiary budynku: Szerokość 5,67 m x długość 9,17 m x wysokość 6,81 m

 

 

Z powierzchnią zabudowy 52 m² dom KORA jest domem o idealnych proporcjach. Został zaprojektowany tak, by zapewnić wygodę i komfort nawet dla 8 osób. Na parterze znajduje się dodatkowa sypialnia, a przestronna antresola pozwala na stworzenie dodatkowej przestrzeni – możliwość wykonania tam łazienki i garderoby czyni ten projekt jeszcze bardziej funkcjonalnym. Wszystkie pomieszczenia zostały zaprojektowane z myślą o wygodzie domowników. Dwie łazienki, kuchnia oraz elektryczne ogrzewanie zapewniają komfort przez cały rok, a nowoczesne okna trzyszybowe energooszczędne gwarantują doskonałą izolację termiczną. Dodatkowo, ocieplenie z wełny mineralnej oraz fundament w postaci płyty zapewniają trwałość oraz efektywność energetyczną budynku.

Opis wykończenia

KORA  to nowoczesny dom modułowy o powierzchni  65 m² .Wyjątkowy design, z dużymi przeszkleniami, zapewnia domownikom optymalną ilość naturalnego światła przez cały dzień, wprowadzając do wnętrza ciepło i przestronność.

Wersja Standard zawiera

konstrukcja budynku-ściany zewnętrzne. Konstrukcja ścian działowych, 

stolarka okienna trzyszybowaa- energooszczędna,

drzwi zewnętrzne stalowe w kolorze grafitowym,

Pokrycie dachu blacha na rąbek stojący, kolor antracyt, obróbki blacharskie w kolorze dachu, ocieplenie sufitu wełną mineralną oraz wykończenie płytami G-K.

Parapety zewnętrzne, nadproża okienne,

Zgłoszenie Budynku Rekreacji Indywidualnej

Ocieplona zbrojna płyta fundamentowa z wykonaniem posadzki betonowej (typu mixokret)

Klimatyzacja z opcją grzania i chłodzenia

Ilość punktów elektrycznych zgodnie z projektem, Instalacje wodne oraz kanalizacyjne (sanitarne), przewody wody i odpływy kanalizacyjne kuchni i łazienka, Płyty OSB, Płyty G-K na ścianę, Ocieplenie ścian wełną mineralną zgodnie z projektem.

Cena: 

Taras 20 m2 (dodatkowo):

Preferencyjna stawka VAT 8% dotyczy budynków mieszkalnych na działce budowlanej.
Poszczególne stany wykończenia nie zawierają ceny fundamentów, instalacji elektrycznej i wod.-kan. oraz transportu.





SPRAWDŹ NASZE TECHNOLOGIE

MATERIAŁY, Z KTÓRYCH SĄ ZBUDOWANE NASZE DOMY

Masz pytania?
Chcesz poznać swoje możliwości?

Nasi doradcy czekają, by przybliżyć Cie do realizacji swojego domu.

Nasze domy produkowane są w zakładzie i dostarczone w uzgodnionym stanie na działkę Klienta. Proces ten trwa do dwóch miesięcy a sam montaż odbywa się w ciągu jednego dnia.

Prezentowane na stronie ceny dotyczą domu produkowanego w zakładzie. Dostawa i montaż jest wyceniany indywidualnie w zależności od lokalizacji, w której ma stanąć dom.

Nasze domy opierają się na konstrukcji szkieletowej z dwuteowych belek firmy Steico. Przestrzeń pomiędzy belkami wypełniona jest izolacją termiczną.

W zakładce Kontakt z nami znajduje się formularz kontaktowy. Możesz też po prostu zadzwonić.

💡 Sprawdź FAQ – Zobacz, czy ktoś już nie zadał tego pytania, które masz na myśli! W naszej sekcji Najczęściej Zadawanych Pytań znajdziesz szybkie odpowiedzi na wiele popularnych tematów.

O nas

PEConstruction Sp. z o.o.
Domy modułowe prefabrykowane oraz szkieletowe