HORIZON 85 LOFT

Z poddaszem użytkowym o pow. 96,63 m2
(po podłodze 120,56 m2)

Projekt HORIZON 85 LOFT to designerski i nowoczesny projekt domu. Wysoki sufit w salonie oraz duże przeszklenia dają mieszkańcom poczucie przestrzeni.

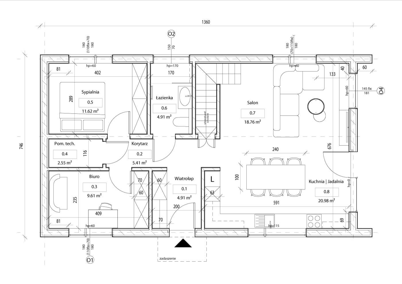
RZUT PARTERU

Zobacz rozmieszczenie i powierzchnię pomieszczeń

Wiatrołap: 4,91 m2

Korytarz: 5,41 m2

Biuro: 9,61 m2

Pom.Techniczne: 2,55 m2

Sypialnia: 11,62 m2

Łazienka: 4,91 m2

Salon: 18,76 m2

Kuchnia i jadalnia: 20,98 m2

SUMA: 78,78 m2

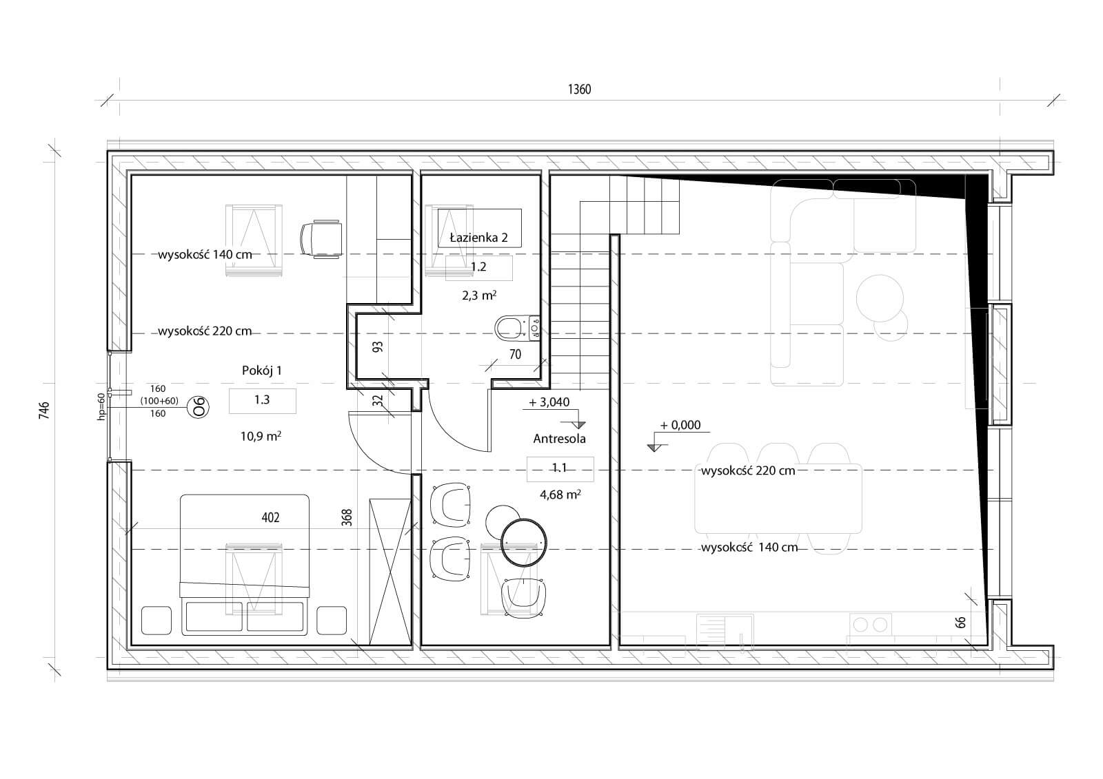
PODDASZE

Zobacz rozmieszczenie i powierzchnię pomieszczeń

Antresola: 9,93 m2

Pokój: 26,00 m2

Łazienka: 5,85 m2

SUMA: 41,78 m2

Uwaga:

Powierzchnia użytkowa liczona jest w następujący sposób:

Poniżej 140 cm – 0%
Pomiędzy 140 cm – 220 cm – 50%
Powyżej 220 cm – 100%

HORIZON 85 LOFT  to wyjątkowy projekt nowoczesnego domu  z funkcjonalnym układem wnętrza i poddaszem, idealny dla pary lub małej rodziny. Jego minimalistyczna bryła, duże przeszklenia i przestronny taras tworzą doskonałą harmonię między komfortem życia a estetyką architektury.

MATERIAŁY

Powierzchnia użytkowa

96,63 m2

Powierzchnia zabudowy

94,61 m2

Wysokość budynku

6,49 m

Wymiary zewnętrzne

13,60 x 7,46 m
(bez garażu)

Całoroczny

TAK

Powierzchnia po podłodze

120,56 m

Garaż

OPCJONALNIE

Opis wykończenia

Ściany zewnętrzne: U=0,156 W/(m²K), PF=14h: Płyta GK gr. 12,5 mm Ruszt drewniany (przedścianka instalacyjna) gr. 60 mm Płyta OSB3 gr. 15 mm uszczelniona taśmą paroizolacyjną Konstrukcja z drewna KVH 60 x 200 mm Izolacja wełna drzewna gr. 200 mmInstalacje: Peszle rozprowadzone w przedściance instalacyjnej oraz w ścianach

Ściany wewnętrzne nośne: Płyta GK gr. 12,5 mm Płyta OSB3 gr. 12 mm Konstrukcja z drewna C24 KVH 60 x 200 mm Izolacja wełna drzewna gr. 160 mm Płyta OSB3 gr. 12 mm Płyta GK gr. 12,5 mm Ściany wewnętrzne działowe: Płyta GK gr. 12,5 mm Płyta OSB3 gr. 12 mm Konstrukcja z drewna C24 KVH 60 x 100 Izolacja wełna drzewna gr. 80 mm Płyta OSB3 gr. 12 mm Płyta GK gr. 12,5 mm

Strop nad parterem: Płyta OSB3 gr. 15 mm Płyta izolacyjna gr. 20 mm (izolacja akustyczna od dźwięków uderzeniowych) Płyta OSB3 gr. 22 mm Konstrukcja z drewna C24 KVH 60 x 240 mm Izolacja wełna drzewna gr. 100 mm (izolacja akustyczna od dźwięków powietrznych)

Dach: U=0,135 W/(m²K), PF=16h Blacha na rąbek, kolor RAL 7016 Łaty / kontrłaty 40 x 60 mm Płyta nakrokwiowa izolacja z wełny drzewnej 60 mm Wiązary z drewna C24 KVH Izolacja wełna gr. 240 mm Folia paroizolacyjna

Stolarka okienna PCV 3 szybowa, kolor antracyt Okna dachowe PCV wg. Założeń projektu koncepcji, kolor Drzwi zewnętrzne – do wyboru z katalogu do 4500 zł Orynnowanie: stalowe, rynny i rury spustowe okrągłe, kolor RAL 7016

Elewacja: W standardzie: Płyta elewacyjna izolacja z wełny drzewnej 60 mm Tynk w kolorze białym – struktura baranek. Inne opcje: Blacha na rąbek Deska elewacyjna – w pionie/poziomie do wyceny indywidualnej

Standard izolacji wełna drzewna

Instalacje: Peszle rozprowadzone w przedściance instalacyjnej oraz w ścianach

Stan deweloperski: 460 000 zł netto

Preferencyjna stawka VAT 8% dotyczy budynków mieszkalnych na działce budowlanej.

Poszczególne stany wykończenia nie zawierają ceny fundamentów, instalacji elektrycznej i wod.-kan. oraz transportu.

Nasze technologie

Opracowaliśmy kompleksową ofertę, obejmującą zaawansowane technologicznie produkty dla domu HORIZON, takie jak:

  • dach fotowoltaiczny SOLIDACH,
  • panele słoneczne JBG PV,
  • propanowe pompy ciepła JBG HT,
  • innowacyjne wysokoizolacyjne szyby próżniowe.
sole-94-v.2-tyl

Masz pytania?
Chcesz poznać swoje możliwości?

Nasi doradcy czekają, by przybliżyć Cie do realizacji swojego domu.

Nasze domy produkowane są w zakładzie i dostarczone w uzgodnionym stanie na działkę Klienta. Proces ten trwa do dwóch miesięcy a sam montaż odbywa się w ciągu jednego dnia.

Prezentowane na stronie ceny dotyczą domu produkowanego w zakładzie. Dostawa i montaż jest wyceniany indywidualnie w zależności od lokalizacji, w której ma stanąć dom.

Nasze domy opierają się na konstrukcji szkieletowej z dwuteowych belek firmy Steico. Przestrzeń pomiędzy belkami wypełniona jest izolacją termiczną.

W zakładce Kontakt z nami znajduje się formularz kontaktowy. Możesz też po prostu zadzwonić.

💡 Sprawdź FAQ – Zobacz, czy ktoś już nie zadał tego pytania, które masz na myśli! W naszej sekcji Najczęściej Zadawanych Pytań znajdziesz szybkie odpowiedzi na wiele popularnych tematów.

O nas

PEConstruction Sp. z o.o.
Domy modułowe prefabrykowane oraz szkieletowe