Dom całoroczny lub letniskowy Omega – funkcjonalny, nowoczesny, dopasowany do Twoich potrzeb
Omega to dom wykonany w technologii drewniano-stalowej, z zastosowaniem certyfikowanego drewna konstrukcyjnego C24, wełny mineralnej oraz membrany izolacyjnej, która zapewnia wysoki komfort cieplny i zdrowy mikroklimat. Wzmocniona konstrukcja z płyt gipsowo-włóknowych gwarantuje trwałość i odporność na uszkodzenia. Dach pokryty blachą trapezową z pełną obróbką i systemem rynnowym PVC.
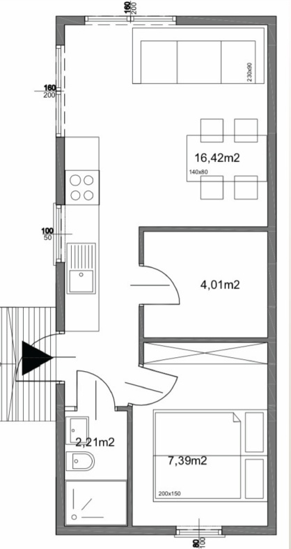
Omega łączy nowoczesną technologię, ekologię i szybki montaż, spełniając współczesne normy budowlane. Przeznaczona dla dwuosobowej rodziny lub rodziny 2+1, oferuje przemyślany układ: przestronny salon z aneksem kuchennym, łazienkę, sypialnię oraz antresolę pełniącą funkcję dodatkowej sypialni lub strefy relaksu. Komfort użytkowania podnosi zadaszony taras – dostępny w dwóch wariantach – idealny na wypoczynek na świeżym powietrzu.
Cena bazowa domu Omega to 125 906 zł netto / 142 600 zł brutto
Szeroka gama opcji dodatkowych pozwala na indywidualne dopasowanie projektu do Twoich potrzeb:
Rozbudowa bryły: przedłużenie lub poszerzenie domu od 7 000 zł
Pakiety ocieplenia: od wersji letniskowej po całoroczny Winter+ (grubość ścian do 250 mm)
Rodzaje elewacji: standardowa, lamelowa fronto lub nowoczesna kerrafront
-Wnętrze: w wersji standard lub Standard Plus z ulepszonymi meblami i wyposażeniem
Tarasy: standardowy lub Optimum – oba z zadaszeniem
Dodatki: klimatyzacja z funkcją pompy ciepła, okna trzyszybowe, powiększona kuchnia w kształcie L, bojler Ariston 50 l, obudowa przestrzeni pod domem i wiele innych
Obowiązuje preferencyjna stawka VAT 8% dla budynków mieszkalnych na działce budowlanej.
Ceny nie obejmują fundamentów, transportu ani wykonania przyłączy elektrycznych i wodno-kanalizacyjnych






